White
White

Projekt domu ARCHON+ Dom w werbenach 5 (G2P)

więcej o projekcie Dom w werbenach 5 (G2P) na archon.pl »
Dom jednorodzinny parterowy z poddaszem użytkowym
garaż, piwnica, 6 pokoi, 1 kuchnia, 2 łazienki, spiżarka, kotłownia, pralnia, garderoby, pomieszczenie gospodarcze, kominek,
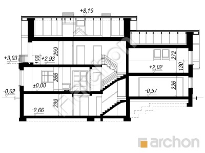
PARAMETRY TECHNICZNE
Powierzchnia domu
bez garażu, piwnic
171,20 m2
Powierzchnia garażu 38,38 m2
Powierzchnia piwnic 70,49 m2
Min. wymiary działki [i] 26,80x16,92 m
* po adaptacji [i] 24,90x16,92 m
Kubatura 1 208,00 m3
Powierzchnia zabudowy 150,60 m2
Powierzchnia użytkowa [i] 164,21 m2
Wysokość 8,81 m
TECHNOLOGIA I KONSTRUKCJA:
ściany zewnetrzne: pustak ceramiczny Porotherm 25 cm, styropian 20 cm, tynk
strop: płyta żelbetowa
ścianka kolankowa: 100 cm
dach: dwuspadowy, nachylenie 42 st , więźba drewniana, dachówka ceramiczna



CENA PROJEKTU:

6 590,00 zł

zamów na archon.pl
podyskutuj o projekcie Dom w werbenach 5 (G2P)
Dom w werbenach 5 (G2P)
70,49 (76,41)
1. Korytarz 7,92 (11,32)
2. Spiżarnia 10,01
3. Pom. gospodarcze 5,05
4. Pom. gospodarcze 25,11
5. Kotłownia 15,35
6. Pom. gospodarcze 7,05 (9,57)
Dom w werbenach 5 (G2P)
PARTER 114,86
1. Wiatrołap 4,55
2. Hol 7,68
3. Łazienka 3,26
4. Schody 5,21
5. Pralnia 4,72
6. Garaż 38,38
7. Pokój 9,87
8. Salon + Jadalnia 31,60
9. Kuchnia 9,59
Dom w werbenach 5 (G2P)
PODDASZE 94,72 (114,41)
1. Schody 4,97 (4,97)
2. Pom. rekreacyjne 31,76 (38,68)
3. Korytarz 7,06 (7,06)
4. Pokój {z garderobą} 11,18 (13,21)
5. Garderoba 2,27 (3,37)
6. Pokój 13,59 (16,84)
7. Pokój 17,55 (20,80)
8. Łazienka 6,34 (9,48)
White
White

Porozmawiaj o projekcie

comments powered by Disqus