White
White

Projekt domu ARCHON+ Dom w rododendronach 3 (G2)

więcej o projekcie Dom w rododendronach 3 (G2) na archon.pl »
Dom jednorodzinny poddaszem użytkowym
garaż, 6 pokoi, 1 kuchnia, 2 łazienki, spiżarka, kotłownia, garderoby, kominek,
PARAMETRY TECHNICZNE
Powierzchnia domu
bez kotłowni, garażu
130,64 m2
Powierzchnia kotłowni 3,27 m2
Powierzchnia garażu 38,41 m2
Min. wymiary działki [i] 23,60x17,12 m
* po adaptacji [i] 22,00x17,12 m
Kubatura 816,00 m3
Powierzchnia zabudowy 127,40 m2
Powierzchnia użytkowa [i] 121,88 m2
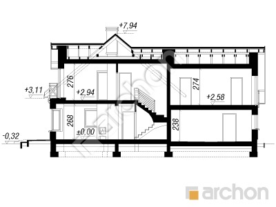
Wysokość 8,26 m
TECHNOLOGIA I KONSTRUKCJA:
ściany zewnetrzne: pustak ceramiczny Porotherm 25 cm, styropian 20 cm, tynk
strop: płyta żelbetowa
ścianka kolankowa: 113 cm
dach: dwuspadowy, nachylenie 40 st , więźba drewniana, dachówka ceramiczna



CENA PROJEKTU:

5 550,00 zł

zamów na archon.pl
podyskutuj o projekcie Dom w rododendronach 3 (G2)
Dom w rododendronach 3 (G2)
PARTER 93,42 (94,59)
1. Wiatrołap 3,60
2. Kotłownia 3,27
3. Hol 4,05
4. Łazienka 2,92 (4,09)
5. Pokój 8,87
6. Spiżarnia 1,72
7. Kuchnia 9,89
8. Salon 20,69
9. Garaż 38,41
Dom w rododendronach 3 (G2)
PODDASZE 78,90 (96,61)
1. Hol i schody 7,21
2. Łazienka 8,81 (10,17)
3. Pokój 16,78 (19,14)
4. Pokój 9,00 (11,25)
5. Pom. rekreacyjne 10,19 (11,39)
6. Pokój {z garderobą} 19,87 (25,21)
7. Garderoba 3,52 (6,12)
8. Garderoba 3,52 (6,12)
White
White

Porozmawiaj o projekcie

comments powered by Disqus