White
White

Projekt domu ARCHON+ Dom w kortlandach (G2P)

więcej o projekcie Dom w kortlandach (G2P) na archon.pl »
Dom jednorodzinny parterowy z poddaszem użytkowym
garaż, piwnica, strych, 5 pokoi, 1 kuchnia, 2 łazienki, spiżarka, kotłownia, pralnia, garderoby, pomieszczenie gospodarcze, kominek,
PARAMETRY TECHNICZNE
Powierzchnia domu
bez garażu, strychu, piwnic
150,28 m2
Powierzchnia garażu 35,16 m2
Powierzchnia piwnic 81,01 m2
Powierzchnia strychu 17,29 m2
Min. wymiary działki [i] 22,00x21,00 m
* po adaptacji [i] 21,00x21,00 m
Kubatura 1 289,37 m3
Powierzchnia zabudowy 157,85 m2
Powierzchnia użytkowa [i] 141,71 m2
Wysokość 8,56 m
TECHNOLOGIA I KONSTRUKCJA:
ściany zewnetrzne: pustak ceramiczny Porotherm 25 cm, styropian 20 cm, tynk
strop: płyta żelbetowa
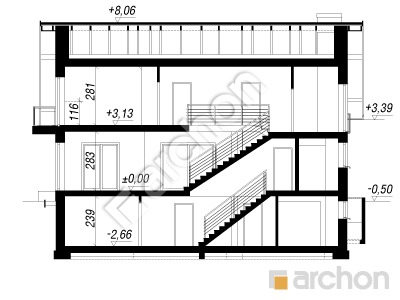
ścianka kolankowa: 116 cm
dach: dwuspadowy, nachylenie 38 st , więźba drewniana, dachówka ceramiczna



CENA PROJEKTU:

6 240,00 zł

zamów na archon.pl
podyskutuj o projekcie Dom w kortlandach (G2P)
Dom w kortlandach (G2P)
PIWNICA 81,01 (83,42)
1. Schody 4,62
2. Korytarz 10,82 (13,23)
3. Pom. gospodarcze 14,31
4. Pom. gospodarcze 5,14
5. Kotłownia 14,54
6. Pralnia 16,64
7. Spiżarnia 14,94
Dom w kortlandach (G2P)
PARTER 115,36
1. Wiatrołap 6,99
2. Kuchnia 10,07
3. Salon + Jadalnia 37,86
4. Schody 4,33
5. Przedpokój 3,36
6. Pokój 13,66
7. Łazienka 3,93
8. Garaż 35,16
Dom w kortlandach (G2P)
PODDASZE 87,37 (119,25)
1. Hol i schody 9,82 (9,82)
2. Pokój 12,02 (14,18)
3. Garderoba 4,26 (5,75)
4. Pokój {z garderobą} 15,67 (20,76)
5. Pokój 14,12 (15,56)
6. Łazienka 9,88 (13,58)
7. Pralnia 4,31 (4,31)
8. Strych 17,29 (35,29)
White
White

Porozmawiaj o projekcie

comments powered by Disqus