White
White

Projekt domu ARCHON+ Dom pod soforą 3

więcej o projekcie Dom pod soforą 3 na archon.pl »
Dom jednorodzinny z poddaszem użytkowym
6 pokoi, 1 kuchnia, 2 łazienki, spiżarka, jadalnia, kotłownia, pralnia, garderoby, antersola, kominek,
PARAMETRY TECHNICZNE
Powierzchnia domu
bez kotłowni
196,73 m2
Powierzchnia kotłowni 5,59 m2
Min. wymiary działki [i] 22,30x21,30 m
* po adaptacji [i] 21,30x19,70 m
Kubatura 1 022,42 m3
Powierzchnia zabudowy 149,97 m2
Powierzchnia użytkowa [i] 184,94 m2
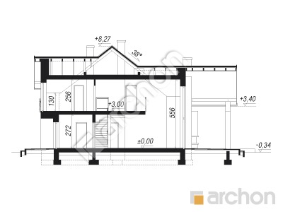
Wysokość 8,61 m
TECHNOLOGIA I KONSTRUKCJA:
ściany zewnetrzne: pustak ceramiczny Porotherm 25 cm, styropian 20 cm, tynk
strop: płyta żelbetowa
ścianka kolankowa: 130 cm
dach: dwuspadowy, nachylenie 38 st , więźba drewniana, dachówka ceramiczna



CENA PROJEKTU:

5 850,00 zł

zamów na archon.pl
podyskutuj o projekcie Dom pod soforą 3
Dom pod soforą 3
PARTER 110,11 (112,52)
1. Wiatrołap 7,10
2. Kotłownia 5,59 (7,48)
3. Salon 33,99
4. Przedpokój 4,17 (4,69)
5. Gabinet 9,77
6. Łazienka 4,94
7. Pom. rekreacyjne 10,80
8. Jadalnia 17,59
9. Kuchnia 13,20
10. Spiżarnia 2,96
Dom pod soforą 3
PODDASZE 92,21 (102,30)
1. Schody 5,37 (5,37)
2. Antresola 19,90 (19,90)
3. Pokój 13,10 (15,37)
4. Pokój 14,87 (17,67)
5. Pokój {z garderobą} 14,74 (14,74)
6. Garderoba 3,60 (4,81)
7. Sauna 4,23 (5,77)
8. Łazienka 11,17 (11,17)
9. Pralnia 5,23 (7,50)
White
White

Porozmawiaj o projekcie

comments powered by Disqus