White
White

Projekt domu ARCHON+ Dom w rododendronach 15 (N)

więcej o projekcie Dom w rododendronach 15 (N) na archon.pl »
Dom jednorodzinny parterowy z poddaszem użytkowym
garaż, 6 pokoi, 1 kuchnia, 2 łazienki, kotłownia, garderoby, pomieszczenie gospodarcze, kominek,
PARAMETRY TECHNICZNE
Powierzchnia domu
bez kotłowni, garażu
117,90 m2
Powierzchnia kotłowni 7,70 m2
Powierzchnia garażu 18,76 m2
Min. wymiary działki [i] 20,62x17,42 m
* po adaptacji [i] 18,72x17,42 m
Kubatura 726,89 m3
Powierzchnia zabudowy 108,48 m2
Powierzchnia użytkowa [i] 108,65 m2
Wysokość 8,45 m
TECHNOLOGIA I KONSTRUKCJA:
ściany zewnetrzne: pustak ceramiczny Porotherm 25 cm, styropian 20 cm, tynk
strop: płyta żelbetowa
ścianka kolankowa: 105 cm
dach: dwuspadowy, nachylenie 40 st , więźba drewniana, dachówka ceramiczna



CENA PROJEKTU:

5 100,00 zł

zamów na archon.pl
podyskutuj o projekcie Dom w rododendronach 15 (N)
Dom w rododendronach 15 (N)
PARTER 82,63 (83,83)
1. Wiatrołap 4,23
2. Hol 2,82
3. Kuchnia 6,62
4. Salon + Jadalnia 22,36
5. Pokój 7,80
6. Schody 5,48
7. Pom. gospodarcze 1,74 (2,94)
8. Łazienka 5,12
9. Kotłownia 7,70
10. Garaż 18,76
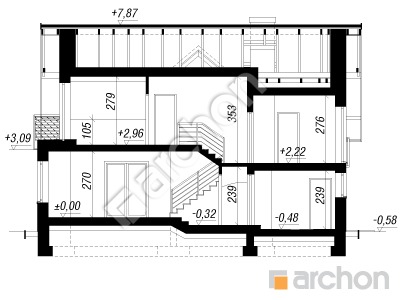
Dom w rododendronach 15 (N)
PODDASZE 61,73 (73,28)
1. Hol 3,75 (3,75)
2. Łazienka 4,65 (6,87)
3. Pokój 8,39 (10,46)
4. Pokój 12,25 (14,90)
5. Pokój 9,18 (10,45)
6. Garderoba 7,51 (8,24)
7. Pokój {z garderobą} 16,00 (18,61)
White
White

Porozmawiaj o projekcie

comments powered by Disqus