White
White

Projekt domu ARCHON+ Dom w gunnerach 2 (R2)

więcej o projekcie Dom w gunnerach 2 (R2) na archon.pl »
Dom dwurodzinny (jednorodzinny dwulokalowy) z poddaszem użytkowym
garaż, 10 pokoi, 2 kuchnie, 2 łazienki, WC, kotłownia, pralnia, garderoby, kominek,
PARAMETRY TECHNICZNE
Powierzchnia domu
bez kotłowni, garażu
211,10 m2
Powierzchnia kotłowni 12,10 m2
Powierzchnia garażu 35,80 m2
Min. wymiary działki [i] 27,08x17,80 m
* po adaptacji [i] 26,08x17,80 m
Kubatura 1 256,33 m3
Powierzchnia zabudowy 183,16 m2
Powierzchnia użytkowa [i] 199,08 m2
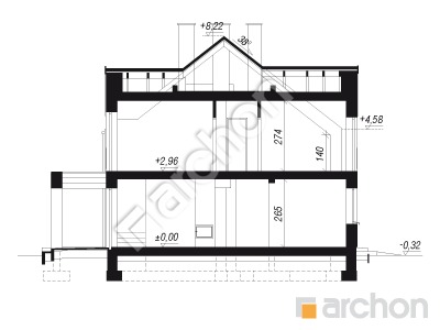
Wysokość 8,54 m
TECHNOLOGIA I KONSTRUKCJA:
ściany zewnetrzne: bloczek z betonu komórkowego H+H 24 cm, styropian 20 cm, tynk
strop: płyta żelbetowa
ścianka kolankowa: 140 cm
dach: dwuspadowy, nachylenie 38 st , więźba drewniana, blacha



CENA PROJEKTU:

8 040,00 zł

zamów na archon.pl
podyskutuj o projekcie Dom w gunnerach 2 (R2)
Dom w gunnerach 2 (R2)
PARTER 130,52 (132,34)
1. Wiatrołap 5,09
2. Salon + Jadalnia 25,79
3. Kuchnia 9,06
4. Toaleta 1,37 (2,28)
5. Kotłownia 6,05
6. Garaż 17,90
7. Wiatrołap 5,09
8. Salon + Jadalnia 25,79
9. Kuchnia 9,06
10. Toaleta 1,37 (2,28)
11. Kotłownia 6,05
12. Garaż 17,90
Dom w gunnerach 2 (R2)
PODDASZE 128,48 (138,24)
1. Hol 6,95
2. Pokój 8,31 (9,29)
3. Pokój 8,84 (9,22)
4. Garderoba 3,29
5. Pokój 14,30 (14,93)
6. Pokój 9,60 (11,17)
7. Łazienka 5,78 (7,10)
8. Pralnia 2,72
9. Schody 4,45
10. Hol 6,95
11. Pokój 8,31 (9,29)
12. Pokój 8,84 (9,22)
13. Garderoba 3,29
14. Pokój 14,30 (14,93)
15. Pokój 9,60 (11,17)
16. Łazienka 5,78 (7,10)
17. Pralnia 2,72
18. Schody 4,45
White
White

Porozmawiaj o projekcie

comments powered by Disqus