White
White

Projekt domu ARCHON+ Dom przy alei 3 (A)

więcej o projekcie Dom przy alei 3 (A) na archon.pl »
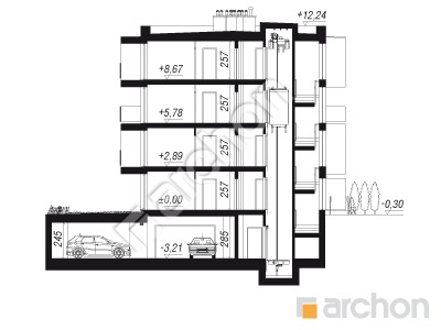
Budynek wielorodzinny piętrowy
garaż, piwnica,
PARAMETRY TECHNICZNE
Kubatura 5 791,42 m3
Powierzchnia zabudowy 301,67 m2
Wysokość 12,54 m
TECHNOLOGIA I KONSTRUKCJA:
ściany zewnetrzne: pustak ceramiczny Porotherm 25 cm, styropian 20 cm, tynk
strop: płyta żelbetowa
dach: płaski, nachylenie 0 st , papa termozgrzewalna
W budynku zaprojektowano 16 mieszkań, w tym: 5 mieszkań dwupokojowych o powierzchni ok 47 m2, 3 mieszkania trzypokojowe o powierzchni ok 52 m2, 8 mieszkań trzypokojowych o powierzchni ok 57 m2. Każde mieszkanie posiada duży balkon lub taras. Budynek wyposażono w windę. W podpiwniczeniu zaprojektowano garaż wielostanowiskowy z 14 miejscami postojowymi oraz pomieszczenie techniczne. Ponadto obiekt charakteryzuje się wysokim współczynnikiem powierzchni użytkowej mieszkalnej (tzw. PUM) do powierzchni netto .



CENA PROJEKTU:

72 900,00 zł

zamów na archon.pl
podyskutuj o projekcie Dom przy alei 3 (A)
Dom przy alei 3 (A)
PIWNICA 407,68 (414,62)
1. Szyb windowy 2,79
2. Klatka schodowa 18,97
3. Przedsionek 2,48
4. Garaż 373,02
5. Pom. gospodarcze 10,42 (17,36)
Dom przy alei 3 (A)
PARTER 236,86
1. Wiatrołap 4,51
2. Klatka schodowa 23,11
3. Mieszkanie 47,10
4. Mieszkanie 57,28
5. Mieszkanie 57,28
6. Mieszkanie 47,58
Dom przy alei 3 (A)
PIĘTRO 235,28
1. Klatka schodowa 23,15
2. Mieszkanie 46,84
3. Mieszkanie 56,86
4. Mieszkanie 56,86
5. Mieszkanie 51,57
Dom przy alei 3 (A)
PIĘTRO 3 234,27
1. Klatka schodowa 23,18
2. Mieszkanie 46,56
3. Mieszkanie 56,55
4. Mieszkanie 56,55
5. Mieszkanie 51,43
White
White

Porozmawiaj o projekcie

comments powered by Disqus