White
White

Projekt domu ARCHON+ Dom w rododendronach 20 (G2N)

więcej o projekcie Dom w rododendronach 20 (G2N) na archon.pl »
Dom jednorodzinny parterowy z poddaszem użytkowym
garaż, strych, 5 pokoi, 1 kuchnia, 2 łazienki, spiżarka, kotłownia, pralnia, garderoby, kominek,
PARAMETRY TECHNICZNE
Powierzchnia domu
bez kotłowni, garażu, strychu
135,93 m2
Powierzchnia kotłowni 6,61 m2
Powierzchnia garażu 39,46 m2
Powierzchnia strychu 18,30 m2
Min. wymiary działki [i] 23,90x18,10 m
* po adaptacji [i] 21,90x18,10 m
Kubatura 942,01 m3
Powierzchnia zabudowy 147,82 m2
Powierzchnia użytkowa [i] 117,25 m2
Wysokość 8,23 m
TECHNOLOGIA I KONSTRUKCJA:
ściany zewnetrzne: pustak ceramiczny Porotherm 25 cm, styropian 20 cm, tynk
strop: płyta żelbetowa
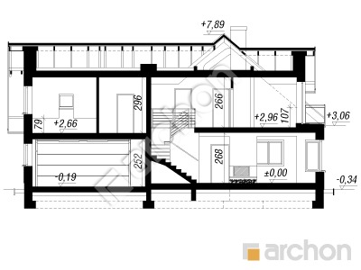
ścianka kolankowa: 107 cm
dach: dwuspadowy, nachylenie 40 st , więźba drewniana, dachówka ceramiczna



CENA PROJEKTU:

5 850,00 zł

zamów na archon.pl
podyskutuj o projekcie Dom w rododendronach 20 (G2N)
Dom w rododendronach 20 (G2N)
PARTER 111,33 (111,95)
1. Wiatrołap 4,41
2. Hol 3,04
3. Kuchnia 9,54
4. Spiżarnia 1,37
5. Salon 27,37
6. Pokój 11,18
7. Łazienka 4,45 (5,07)
8. Garderoba 3,90
9. Garaż 39,46
10. Kotłownia 6,61
Dom w rododendronach 20 (G2N)
PODDASZE 88,97 (111,77)
1. Schody 4,51 (4,51)
2. Hol 8,59 (8,61)
3. Łazienka 5,51 (7,43)
4. Pokój 10,33 (13,15)
5. Pokój 16,65 (18,85)
6. Pokój 11,67 (13,71)
7. Pralnia 8,13 (11,17)
8. Garderoba 5,28 (8,33)
9. Strych 18,30 (26,01)
White
White

Porozmawiaj o projekcie

comments powered by Disqus