Projekt domu ARCHON+ Dom w tamaryszkach 2 (G2NA)
		więcej o projekcie Dom w tamaryszkach 2 (G2NA) na archon.pl »
		
			
				
					Dom jednorodzinny				 
				z poddaszem użytkowym		
				garaż, 6 pokoi, 1 kuchnia, 3 łazienki, kotłownia, pralnia, garderoby, pomieszczenie gospodarcze, kominek, 				
			 
		    				
				
		
			
			
				
					
						| PARAMETRY TECHNICZNE | 
					
				
				
						
							
									Powierzchnia domu bez kotłowni, garażu
							 | 
							
								173,15 m2
							 | 
						
					
						
							| Powierzchnia kotłowni  | 
							7,74 m2 | 
						
					
						
							| Powierzchnia garażu | 
							34,30 m2 | 
						
					
					
					
						
							| 
								Min. wymiary działki 
								[i]
							 | 
							
								24,12x19,12 m
							 | 
						
					
						
							| * po adaptacji 
									
									[i]
							 | 
							
								21,92x19,12 m
							 | 
						
					
						
							| Kubatura | 
							1 032,27 m3 | 
						
					
						
							| Powierzchnia zabudowy | 
							155,36 m2 | 
						
					
						
							| 
								Powierzchnia użytkowa 
									[i]
							 | 
							
								157,13 m2
							 | 
						
					
						
							| Wysokość | 
							8,89 m | 
						
					
			
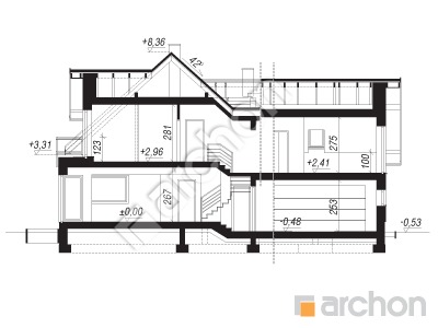
			  TECHNOLOGIA I KONSTRUKCJA:  
			  
			  
ściany zewnetrzne: pustak ceramiczny Porotherm 25 cm, styropian 20 cm, tynk			  
strop: płyta żelbetowa			  
ścianka kolankowa: 123 cm 			  
dach: dwuspadowy, nachylenie 42 st , 
I 35 st , więźba drewniana, dachówka ceramiczna			  
			
			
			
			
			CENA PROJEKTU: 
			
5 940,00 zł
			zamów na archon.pl
			podyskutuj o projekcie Dom w tamaryszkach 2 (G2NA)