White
White

Projekt domu ARCHON+ Dom w sasankach 6 (G)

więcej o projekcie Dom w sasankach 6 (G) na archon.pl »
Dom jednorodzinny z poddaszem użytkowym
garaż, 6 pokoi, 1 kuchnia, 2 łazienki, spiżarka, kotłownia, pralnia, garderoby, kominek,
PARAMETRY TECHNICZNE
Powierzchnia domu
bez kotłowni, garażu
162,36 m2
Powierzchnia kotłowni 5,13 m2
Powierzchnia garażu 22,12 m2
Min. wymiary działki [i] 20,30x20,00 m
Kubatura 921,81 m3
Powierzchnia zabudowy 134,76 m2
Powierzchnia użytkowa [i] 141,84 m2
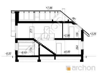
Wysokość 8,28 m
TECHNOLOGIA I KONSTRUKCJA:
ściany zewnetrzne: bloczek z betonu komórkowego H+H 24 cm, styropian 20 cm, tynk
strop: płyta żelbetowa
ścianka kolankowa: 126 cm
dach: dwuspadowy, nachylenie 40 st , więźba drewniana, dachówka ceramiczna



CENA PROJEKTU:

5 850,00 zł

zamów na archon.pl
podyskutuj o projekcie Dom w sasankach 6 (G)
Dom w sasankach 6 (G)
PARTER 102,17 (104,67)
1. Wiatrołap 4,65
2. Korytarz 6,46
3. Pokój 9,71
4. Kuchnia 11,80
5. Salon + Jadalnia 32,16
6. Spiżarnia 2,94 (5,33)
7. Łazienka 3,85
8. Garderoba 3,35
9. Garaż 22,12 (22,23)
10. Kotłownia 5,13
Dom w sasankach 6 (G)
PODDASZE 87,44 (103,15)
1. Schody 3,82
2. Hol 16,08
3. Pokój 12,41 (13,73)
4. Pokój 11,62 (14,47)
5. Garderoba 4,21 (5,23)
6. Pokój 11,88 (14,73)
7. Pokój 11,57 (13,73)
8. Garderoba 3,69 (3,80)
9. Łazienka 5,83 (8,53)
10. Pralnia 6,33 (9,03)
White
White

Porozmawiaj o projekcie

comments powered by Disqus